Tussenwoning in Hilversum

Licht, ruimte gecombineerd met vakmanschap
De bestaande woning van onze opdrachtgever, een jong gezin – was toe aan een upgrade. Al gauw ontwierpen we een uitbouw en bedachten we een fijne nieuwe routing in het interieur, zonder bestaande ensuite. Ons doel was duidelijk: Deze woning toekomstbestendig maken door een volledige renovatie met verduurzaming en een aanbouw ontwerpen die licht, ruimtelijk en comfortabel aanvoelt.

Projectdetails:
• Opdrachtgever; particulier
• Ontwerpteam: Richel Lubbers, Jelle van Drie, Caspar Zijlstra
• Status: Opgeleverd
• Realisatie 2025
• Ontwerpfases Voorontwerp, Definitief ontwerp, Technisch Ontwerp, Lichtplan, Interieurontwerp, Bouwbegeleiding
Projectarchitect: Richèl Lubbers
Teamleden: Richel Lubbers, Jelle van Drie, Caspar Zijlstra

In de vroege 20e eeuw groeide Hilversum uit tot een modern centrum, mede dankzij de bloei van de media-industrie en de groeiende bevolking. Om het wonen aangenaam en groen te maken, werden hier de beroemde tuindorpen aangelegd, geïnspireerd door de Engelse “Garden City”-gedachte van Ebenezer Howard. In het ontwerpproces werd de verbouwing groter, de bovenverdiepingen kwamen er ook bij, 2 badkamers, al het stuc en schilderwerk en mooie parketvloeren.

Exterieur:

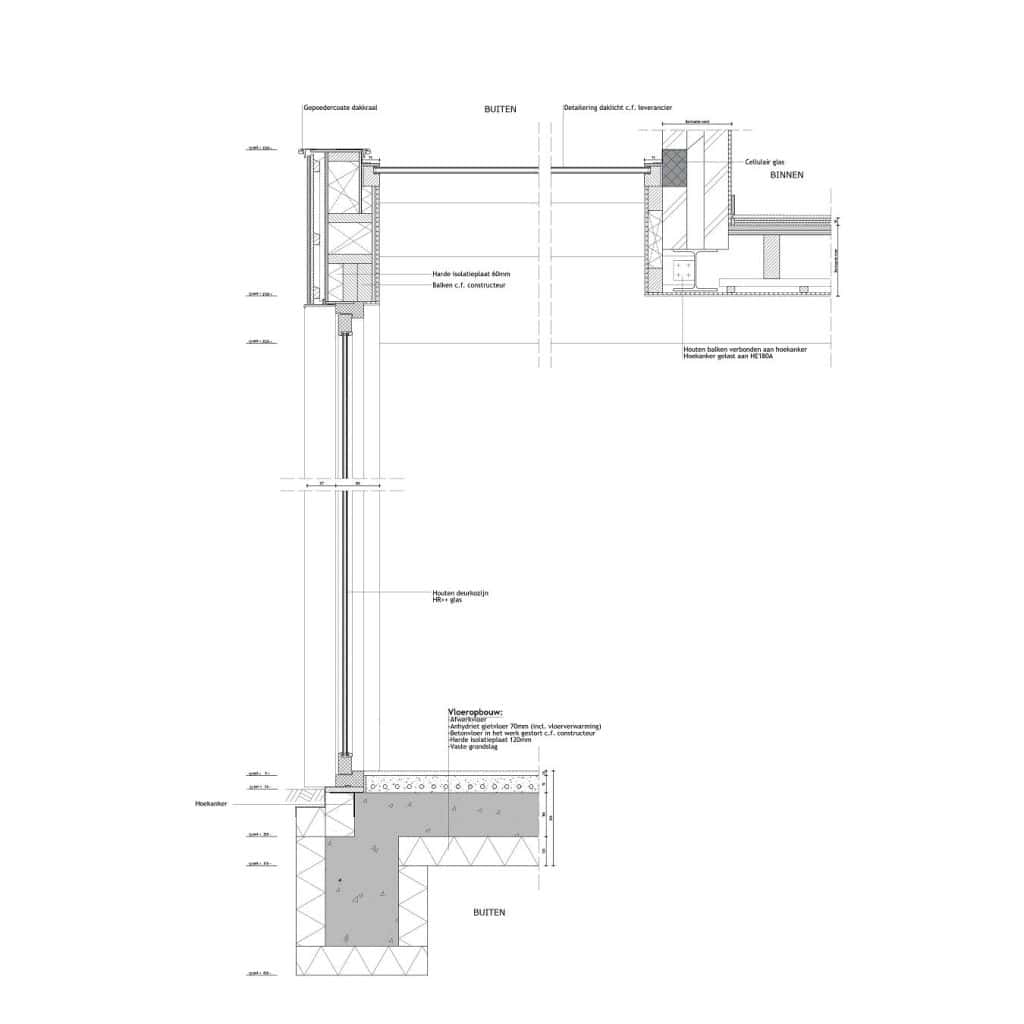
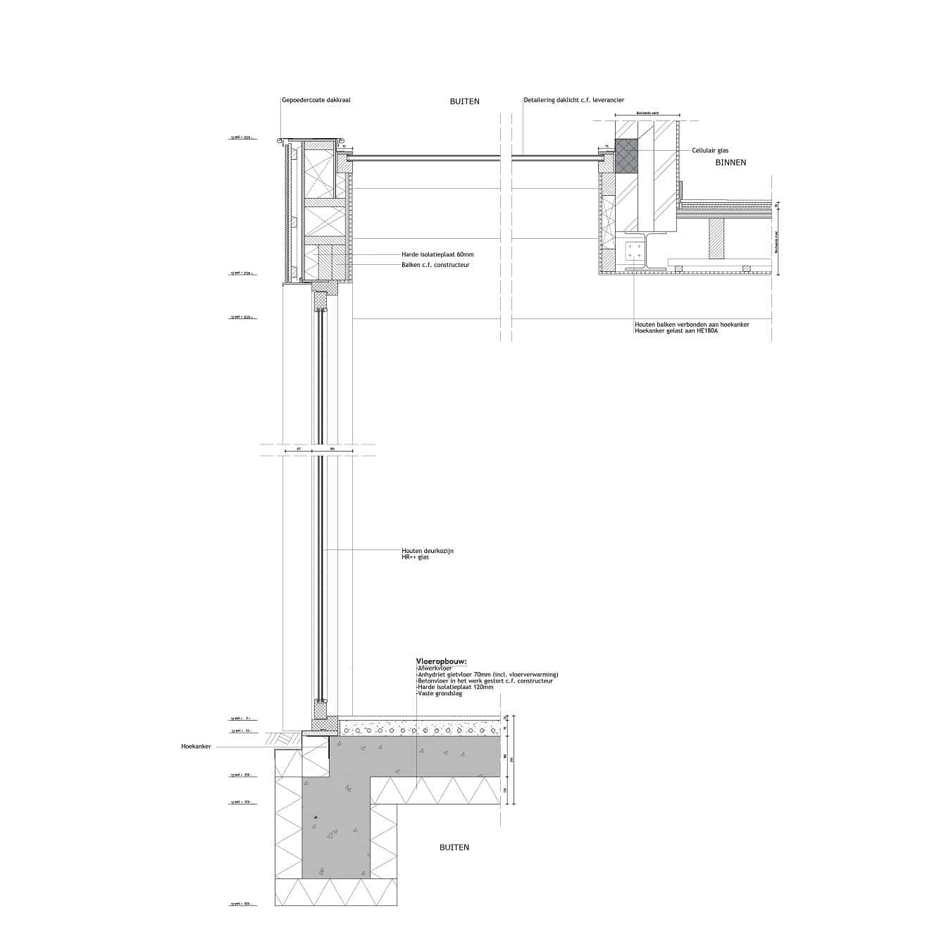
Deze uitbouw combineert moderne toevoegingen met karakteristieke elementen van de bestaande woning. 1 uitbouw met 2 volumes die in elkaar grijpen. Ze worden beide geaccentueerd door verticaal en horizontaal tegelwerk. Elke tegel is met precisie geplaatst, volgens het principe van volledige tegelmaten, zonder snijverlies. Het gebruik van handgemaakte terracotta tegels van David&Goliath, met iets donkerder voegwerk, geeft subtiel diepte en karakter en benadrukt het ambachtelijke detail.

Ook historische elementen uit de bestaande woning en de buurt zijn subtiel verwerkt. De driedelige raamkozijnen bij de buren vormden inspiratie, net als de verspringingen in volumes die Dudok toepaste bij iconische gebouwen zoals het raadhuis van Hilversum. Deze elementen zijn niet letterlijk gekopieerd, maar vertaald naar een moderne interpretatie die zowel karakter als functionaliteit toevoegt. Het resultaat is een eigentijdse aanbouw die opgaat in zijn omgeving, maar toch een eigen identiteit heeft.

Interieur:

Het interieur is een spel van daglicht en volumes. Het betreft een aanbouw waarbij we de aanbouw modern hebben gehouden en het bestaande gedeelte hebben geaccentueerd door een gestucte plint op het plafond.

Het gedeelte van de keuken is iets verlaagd, terwijl de achterdeur juist hoog is. Vanuit het interieur is gekozen voor een groot daklicht, die geeft heel veel licht.

De functionele keuken is zorgvuldig uitgewerkt met een meubelmaker tot in het kleinste detail, zelfs met een fijne kruidenlade, daarover later meer;)

De kleuren van het exterieur hebben we gecombineerd met de materialen en kleuren in het interieur.

Het vloeit in elkaar over: de steenachtige kleur, de geschilderde roze muur, de donker roze gordijnen, paarse luxaflex en de groenachtige keuken, in werkelijkheid natuurlijk nog mooier;)

Before

Video’s

Exterieur

Interieur

Tekeningen

Renders

Proces

Hoe de opdrachtgever bij ons kwam?
Nou gewoon: telefoon pakken en bellen!

We hebben een afspraak gemaakt op kantoor. Samen hebben we foto’s van het huis op Funda bekeken en artikelen in het bestemmingsplan gelezen. De rest van het uur hebben we zitten filosoferen en schetsen wat er allemaal mogelijk was. Je droomhuis staat gewoon om de hoek. Je moet wel wat huiswerk doen. Samen met ons, even concentreren en gaan!

Stap 1:

Bel ons op 030 207 3173

Stap 2:

We maken voor jou ‘het plan tot realisatie’. Daarvoor plannen we een vrijblijvend gesprek met jou in.

Stap 3:

Als het plan aansluit bij jouw wensen, dan zetten we het plan om in een project.

Of wil je direct contact?

Details van dit project

Titel: Tussenwoning in Hilversum
Projectarchitect: Richèl Lubbers
Teamleden: Richel Lubbers, Jelle van Drie, Caspar Zijlstra
Opdrachtgever: Particulier
Bouwjaar: 2025
Onze inbreng: Ontwerpfases Voorontwerp, Definitief ontwerp, Technisch Ontwerp, Lichtplan, Interieurontwerp, Bouwbegeleiding

Projecten zoals deze

Wil je meer weten over ons werk?

Neem gerust contact op om te ervaren of we jou ergens mee kunnen helpen.
Misschien heb je slechts een korte vraag en hoef je niet zo nodig gelijk een afspraak te maken…. Ook dat is prima,
we staan je graag even te woord en helpen je graag een stapje verder op weg.
Omdat we weten: een project gaat stap voor stap.

Of wil je direct contact?